DR是由电脑数字图像处理技术与X射线放射技术的X线摄影技术,图像可以数字化。DR体检车一种专业车辆能像体检车,常规体检胸透,心电图,B超,血常规分析仪,尿常规生化检验,测试听力等,体检车搭载DR设备即为DR体检车。实现现场问诊,体检身体数据采集等。

伟德国际1949专用车的DR体检车车型均选用一线品牌车(宇通、金龙); 车长有7米、8米、8.5米、9米、10米、10.5米、12米可选。
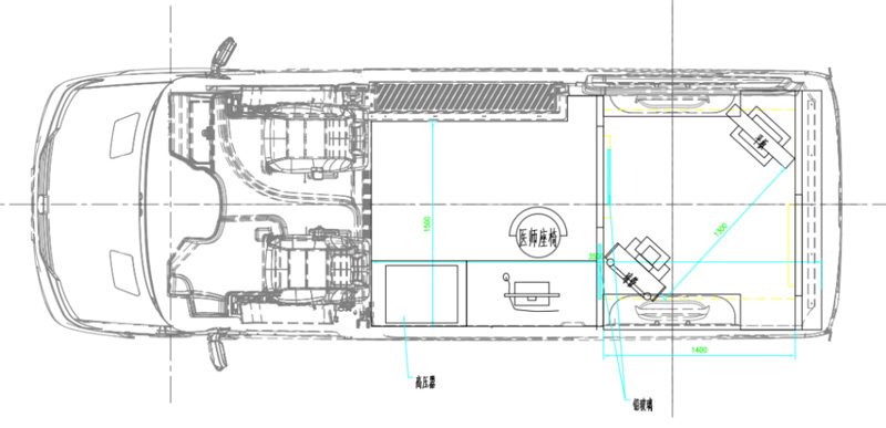
DR体检车立铅防护室,把DR铅防护室安装体检车中心,图像数字化处理成像准确。比医院的科室DR便捷,而且有相当不错的抗震效果,在生产DR车的时候,考虑到车载DR较科室DR功率略小,在体检车上定制车载DR能高效完成放射类体检项目。其放射X剂量少很多,也让移动体检车在行驶过程中更安全。采用三层以上喷涂喷砂技术、防锈防腐、光亮钯漆技术。
移动DR,可以从DR体检车运送到病人床边摄片过后。直接就可以成像了。因为它是数字化的。不需要胶片。更加的简洁,方便,快捷,拥有成像环节少、成像速度快、图像清晰等优点.照了过后,直接就可以通过计算机处理。很快的就能得到图像。在DR体检车就能解决这个情况。就能马上知道结果,了解病人的详细检查信息。缩短治疗的时间。对临床医生做下一步诊断有重要的意义。
电动遮阳棚
高档防紫外线窗帘
电测厅室
DR体检车适用于流动体检车、医疗车、体检中心等,可用于人体的胸部、腹部、脊柱等部位的数字化摄影,供医学教学、科研、医疗单位作X射线数字摄影诊断之用。
根据车辆配置和内部空间不同需求,全身拍摄区域可选择定制不同产品搭载方案。

以下是基本产品配置表:

联系人:13922709440 余先生
销售热线:0724-4016818
售后服务:19171569097
服务热线:400-800-8232
邮 箱:xianhao266@163.com
公 司:伟德国际1949
地 址:湖北省钟祥市南湖新区协企联盟产业园C6栋